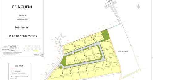
قطعة أرض في Eringhem, France 1180متر مربع رقم 287369
$ 100 729
$ 85 لكلّ متر مربّع؛
1180
غرف المعيشة, م2
Eringhem, France
الإعدادات
غرف المعيشة, م2
1180
ID
287369
نوع
قطعة أرض
المميزات
المرافق الخارجية
- حديقة


