Property description
Discover urban sophistication in this striking three-bedroom residence, perfectly positioned in the heart of Hobart’s CBD, surrounded by Hobart’s best restaurants, shopping, bars, markets and a short 5 minute walk to Salamanca Place and Hobart Docks or 10 minute walk to vibrant North Hobart. This contemporary apartment offers 162 square meters of thoughtfully designed living space, creating an enviable lifestyle opportunity in one of Tasmania’s most sought-after inner city locations.Step inside to discover a contemporary apartment that seamlessly blends comfort with convenience.
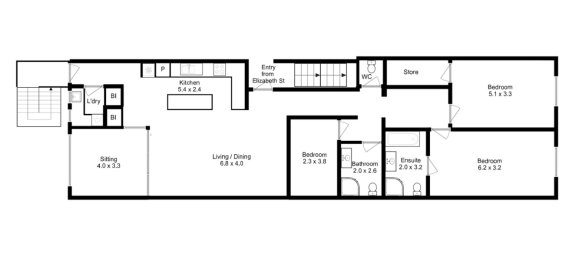
The clever floor plan reveals two generous living areas, providing plenty of space for both relaxation and entertainment. The master bedroom is complemented by a private ensuite with built-in wardrobes.
The 2nd and 3rd bedrooms are serviced by a family bathroom, and a third water closet offers further utility in the adjoining hallway.
Year-round comfort is guaranteed with reverse cycle air conditioning, the spacious feel of period high ceilings with nearly all rooms featuring a skylight offering natural light throughout the apartment.
Two layers of glazing ensure the home remains an exceptionally quiet haven whilst being so centrally located.
The sunroom creates a perfect spot to enjoy your morning coffee or unwind after a busy day, offering a wonderful indoor-outdoor living connection. The property strikes an ideal balance between low-maintenance living in a premium urban setting. Access is gained by a stairway directy from Elizabeth Street, and a further rear acces is provided from the public car park off Bathurst Street. The owners have a permanent park with transferable lease available with the property.
This remarkable property represents a rare opportunity to secure a slice of one of Hobart’s most dynamic locales. Whether you’re seeking a sophisticated urban base, a family home close to everything, a well established BnB offering very attractive returns or a property that puts you in the heart of Hobart’s cultural scene, this residence delivers on all fronts.
Currently returning an annualised average of over $1300 per week…..
Please contact Ben from @realty for further information or a private inspection.



















