4 rooms Apartment in Finkenstein am Faaker See, Austria No. 132682
$ 345 770
$ 2 981 per m²
4
Rooms
1
Bathrooms
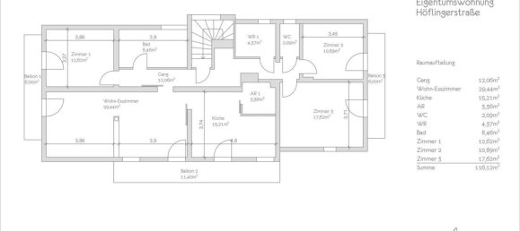
116
Living space, m²
Finkenstein am Faaker See, Austria
Parameters
Rooms
4
Bathrooms
1
Living space, m²
116
ID
132682
Type
Apartment
Completion date
IV quarter, 1945
Features
Location
- South orientation
- West orientation
Features
- Balcony
- Terrace
Indoor facilities
- Storage room
Outdoor features
- Car park
- Garden

































