8 rooms House in Steinbach an der Steyr, Austria No. 180764
$ 558 576
$ 1 272 per m²
8
Rooms
439
Living space, m²
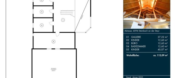
Steinbach an der Steyr, Austria
Parameters
Rooms
8
Living space, m²
439
ID
180764
Type
House
Land area, m²
1096
Completion date
IV quarter, 2008
Features
Outdoor features
- Car park
- Garden
















