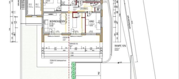
3 rooms Apartment in Wallern an der Trattnach, Austria No. 191107
$ 408 532
$ 4 212 per m²
3
Rooms
97
Living space, m²
Wallern an der Trattnach, Austria
Parameters
Rooms
3
Living space, m²
97
ID
191107
Type
Apartment
Features
Features
- Terrace
Indoor facilities
- Garage
Outdoor features
- Car park
- Garden




















