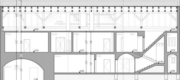
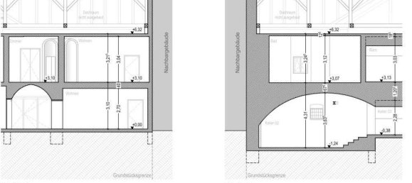
5 rooms Apartment in Bad Radkersburg, Austria No. 22571
$ 404 373
$ 1 953 per m²
5
Rooms
2
Bathrooms
207
Living space, m²
Bad Radkersburg, Austria
Parameters
Rooms
5
Bathrooms
2
Living space, m²
207
ID
22571
Type
Apartment
Features
Location
- South orientation
Features
- Balcony
- Terrace
Outdoor features
- Car park
- Garden



















