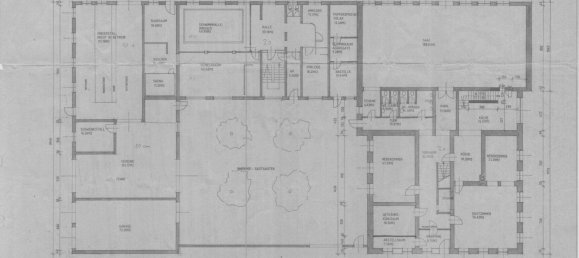
Commercial property in Esternberg, Austria No. 243664
$ 1 526 460
Esternberg, Austria
Parameters
ID
243664
Type
Commercial property
Land area, m²
7292
Completion date
IV quarter, 1500
Features
Indoor facilities
- Garage
Outdoor features
- Car park
























