RIWOG Real Estate
RIWOG Real Estate
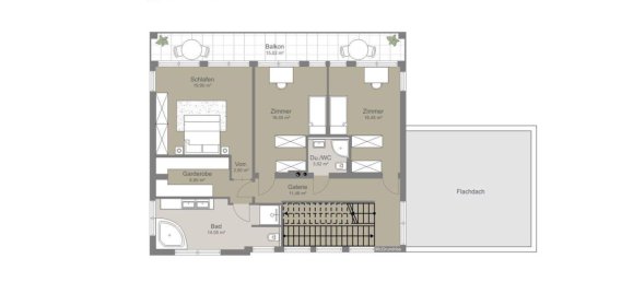
8 rooms House in Wimpassing im Schwarzatale, Austria No. 31367
$ 1 393 966
$ 4 570 per m²
8
Rooms
3
Bathrooms
305
Living space, m²
Wimpassing im Schwarzatale, Austria
RIWOG Real Estate
RIWOG Real Estate
Parameters
Rooms
8
Bathrooms
3
Living space, m²
305
ID
31367
Address
Schnellstraße
Type
House
Land area, m²
1192
Completion date
IV quarter, 2006
Features
Location
- Park/garden view
- South orientation
- West orientation
Features
- Balcony
- Terrace
Indoor facilities
- Storage room
- Garage
Outdoor features
- Car park
- Garden
RIWOG Real Estate
RIWOG Real Estate

























RIWOG Real Estate