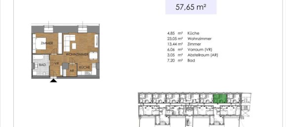
2 rooms Apartment in Bruck an der Leitha, Austria No. 87805
$ 348 359
$ 5 530 per m²
2
Rooms
1
Bathrooms
63
Living space, m²
Bruck an der Leitha, Austria
Parameters
Rooms
2
Bathrooms
1
Living space, m²
63
ID
87805
Address
Bundesstraße
Type
Apartment
Completion date
IV quarter, 1821
Features
Features
- Balcony
- Terrace
Indoor facilities
- Storage room
- Elevator
- Garage
Outdoor features
- Car park
- Garden












































