Property description
Nestled in the vibrant and sought after neighborhood of Exo Vrisi in Paphos, this development under construction offers an exceptional blend of luxury and convenience.It features a stunning collection of 3-bedroom villas, stylish 2-bedroom apartments, elegant 3-bedroom maisonettes, and 3 retail shops.
Situated just minutes away from the city's key attractions such as Kings Avenue Mall, a variety of restaurants and bars, and beautiful beaches, it provides residents with easy access to everything Paphos has to offer. For students and academics, the proximity to three renowned universities adds even more appeal.
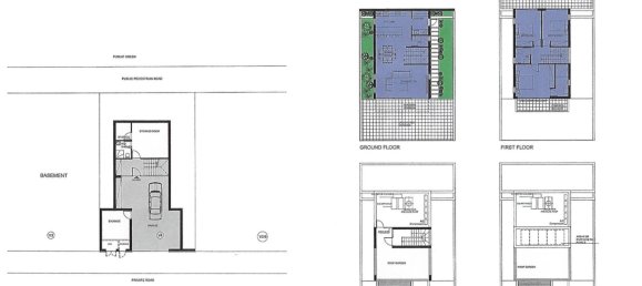
The basement houses a garage for 2 cars, 3 storage rooms and a guest WC with shower.
The ground floor features an open plan kitchen, dining and living room which extends to a covered and an uncovered veranda.
There is a guest WC on this level.
The first floor has 3 bedrooms and 2 bathrooms of which the master bedroom has its own en-suite bathroom and access to a covered balcony.
The roof terrace, with beautiful sea views, has an open space to be customized to the owners taste.
Some of the extra features are: solar panels, double glazing, fitted wardrobes, pressurized water and access to the communal swimming pool.
Villa no.7 & no.8
Internal area: 182.4 m2
Covered veranda: 12.4 m2
Uncovered veranda: 76 m2
Storage: 18.7 m2
Carport: 52.6 m2
Roof terrace uncovered: 22.44 m2
Roof terrace covered: 18.5 m2
This apartment is offered unfurnished.
Estimated date of delivery: 30 months from 1st sale
Price + VAT.








Bezino Trading Ltd
Purple International
Unique Living