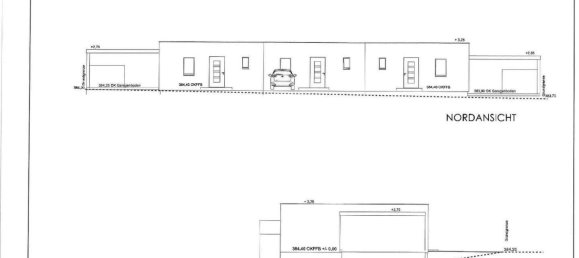
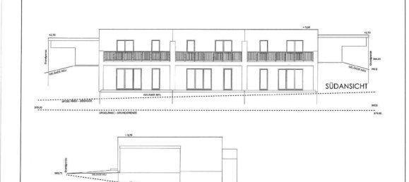
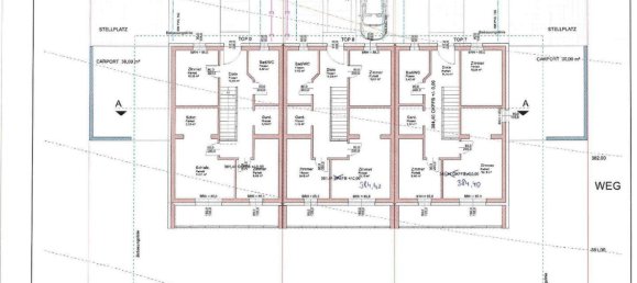
Grundstück in Pollham, Austria 120m², Nr. 106519
$ 428 317
$ 3 569 pro m²
120
Wohnfläche, m²
Pollham, Austria
Parameter
Wohnfläche, m²
120
ID
106519
Art
Grundstück
Landfläche, m²
250







