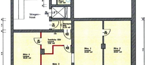
Propriété commerciale à Knittelfeld, Austria 94m² No. 16263
$ 87 413
$ 930 Prix pour m²
10.04.2025
$ 99 067
94
Espace de vie, m²
Knittelfeld, Austria
Paramètres
Espace de vie, m²
94
ID
16263
Type
Propriété commerciale
Date d'achèvement
IV quartier, 1963









