2 bedrooms Duplex in Elbeuf, France No. 314008
$ 109 463
$ 1 955 per m²
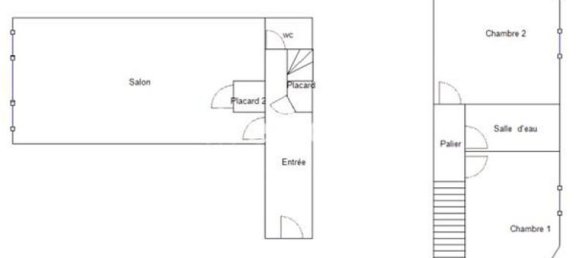
3
Rooms
2
Bedrooms
56
Living space, m²
Elbeuf, France
Parameters
Rooms
3
Bedrooms
2
Living space, m²
56
ID
314008
Address
cours Carnot
Type
Duplex
Completion date
IV quarter, 1970
Features
Features
- Furnished
Indoor facilities
- Garage
Outdoor features
- Car park




