3 bedrooms Townhouse in Harburg, Germany No. 153565
$ 1 508 028
$ 10 620 per m²
5
Rooms
3
Bedrooms
1
Bathrooms
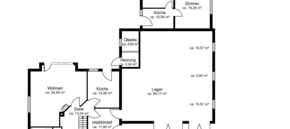
142
Living space, m²
Harburg, Germany
Parameters
Rooms
5
Bedrooms
3
Bathrooms
1
Living space, m²
142
ID
153565
Type
Townhouse
Land area, m²
28600
Completion date
IV quarter, 2003
Features
Features
- Terrace
Indoor facilities
- Garage
Outdoor features
- Car park











Sparkassen Immobilien