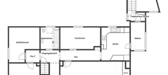
3 bedrooms Duplex in Hoxter, Germany No. 237020
$ 110 628
$ 885 per m²
4
Rooms
3
Bedrooms
2
Bathrooms
125
Living space, m²
Hoxter, Germany
Parameters
Rooms
4
Bedrooms
3
Bathrooms
2
Living space, m²
125
ID
237020
Type
Duplex
Completion date
IV quarter, 1955
Features
Features
- Balcony
- Terrace
Indoor facilities
- Garage
Outdoor features
- Car park
- Garden












