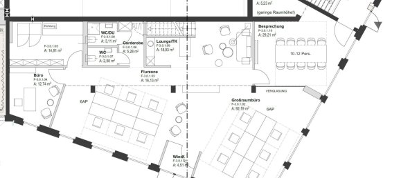
257m² Office in Gutersloh, Germany No. 303670
$ 726 943
$ 2 829 per m²
257
Living space, m²
Gutersloh, Germany
Parameters
Living space, m²
257
ID
303670
Address
Kaiserquartier
Type
Office
Completion date
IV quarter, 2021
Features
Indoor facilities
- Elevator
Outdoor features
- Car park






