6 rooms House in Lorrach, Germany No. 766
$ 692 699
$ 3 646 per m²
28.03.2025
$ 727 625
6
Rooms
2
Bathrooms
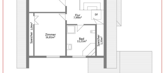
190
Living space, m²
Lorrach, Germany
Parameters
Rooms
6
Bathrooms
2
Living space, m²
190
ID
766
Type
House
Land area, m²
904
Completion date
IV quarter, 2005
Features
Features
- Terrace
Indoor facilities
- Storage room
- Garage
Outdoor features
- Car park

































