Property description
Splendida proprietà in pieno centro cittadino. La tenuta è composta da VILLA PADRONALE in stile liberty con ampio PARCO privato ed alberi di alto fusto, DEPENDANCE, PISCINA a sfioro, MAGAZZINO e LIMONAIA.La Villa è composta da due fabbricati adiacenti. Il primo, ristrutturato nel 2000, si sviluppa su
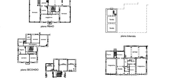
quattro livelli per una metratura totale di ca. 720 mq.
Ad accoglierci al piano terra, un ampio ingresso e due camere con un bagno, corredati da una serie di
utilissimi locali di servizio: lavanderia con montacarichi, stireria, legnaia, due cantine e un
grande GARAGE quadruplo, con accesso interno.
La zona giorno occupa il primo piano: qui troviamo un salone doppio con un romantico camino ed
accesso diretto ad un primo TERRAZZO (ca. 45 mq); tinello e cucina, anch’essa dotata di camino,
stavolta più piccolo, ma perfetto per realizzare cotture alla brace; un’accogliente sala da pranzo
con balcone ed un bagno. Dalla cucina, si accede al secondo TERRAZZO (ca.
62 mq) che è collegato direttamente al parco tramite scala esterna.
Il secondo piano ospita la zona notte con tre ampie
camere da letto, di cui una con balcone, due bagni en-suite (uno con vasca idromassaggio), una stanza cabina armadio che può essere riconvertita in stanza
singola e un'ampio studio col suo camino.
Una stanza da letto con bagno privato si trovano al terzo ed ultimo piano, oltre ad un ampia soffitta abitabile.
Al secondo piano troviamo la zona notte composta da tre camere da letto di cui una con balcone, uno studio con camino, camera singola attualmente adibita a cabina armadio, due bagni en-suite di cui uno con vasca idromassaggio.
Il secondo fabbricato della villa, con ingresso indipendente, è disposta su 3 livelli per circa 400 mq, necessita di interventi di ristrutturazione interna. Strutturalmente solida la costruzione presenta attualmente 6 fondi e locale caldaia al piano terra, 3 camere, cucina con camino, doppio soggiorno e bagno al primo piano, soffitta con camera al secondo piano.
Il MAGAZZINO vicino alla piscina, è stato in passato adibito allo stoccaggio e al deposito dei cereali.
Oggi, la sua caratteristica più interessante è l’altezza di 8,3m: tanto spazio può essere modificato e
convertito in qualsiasi tipo di locale, a seconda dei gusti e delle necessità. Attualmente, è diviso in
tre parti: nella prima, interessata dal recente restauro che ha riportato alla luce la bellezza
originaria, è stata ricavata una dependance di 110 mq, con un accesso riservato alla piscina. La
seconda parte, che necessita di ristrutturazione interna, è distribuita su due ampi livelli che
coprono una superficie di 380 mq al piano terra e 200 al secondo. La terza parte, infine, è coperta
dai 40mq della squisita limonaia.
Completano al proprietà ca. 5200 mq di PARCO con PISCINA a sfioro di 15x 8 con lastrico solare e giardino circostante. La privacy è garantita dalla
recinzione che corre lungo l’intero perimetro della tenuta, con doppio cancello automatico.
Ultima ma non meno importante caratteristica della Villa è la sua posizione nel cuore di Marsciano:
tutti i servizi sono disponibili e raggiungibili a piedi. La superstrada E 45 dista 6 km e consente di
raggiungere Perugia e il suo aeroporto in circa 25 minuti. Tutte le principali località turistiche
dell’Umbria, Todi, Assisi, Spoleto, Gubbio, Lago Trasimeno, Orvieto sono facilmente raggiungibili
mentre Roma con i suoi aeroporti (Ciampino e Fiumicino) dista meno di due ore.
Beautiful Art Nouveau MANOR HOUSE with large private PARK and tall trees, outbuilding, infinity POOL, WAREHOUSE and lemon house.
The Villa consists of two adjacent buildings. The main one and recently renovated, is distributed over 4 levels for a total of about 720 square meters.
On the ground floor we find the entrance, two bedrooms, a bathroom, the laundry with goods lift, the ironing room, the woodshed, the quadruple GARAGE with internal access and two cellars. The first floor is dedicated to th.
Il secondo piano ospita la zona notte con tre ampie
camere da letto, di cui una con balcone, due bagni en-suite (uno con vasca idromassaggio), una stanza cabina armadio che può essere riconvertita in stanza
singola e un'ampio studio col suo camino.
Una stanza da letto con bagno privato si trovano al terzo ed ultimo piano, oltre ad un ampia soffitta abitabile.
Al secondo piano troviamo la zona notte composta da tre camere da letto di cui una con balcone, uno studio con camino, camera singola attualmente adibita a cabina armadio, due bagni en-suite di cui uno con vasca idromassaggio.
Il secondo fabbricato della villa, con ingresso indipendente, è disposta su 3 livelli per circa 400 mq, necessita di interventi di ristrutturazione interna. Strutturalmente solida la costruzione presenta attualmente 6 fondi e locale caldaia al piano terra, 3 camere, cucina con camino, doppio soggiorno e bagno al primo piano, soffitta con camera al secondo piano.
Il MAGAZZINO vicino alla piscina, è stato in passato adibito allo stoccaggio e al deposito dei cereali.
Oggi, la sua caratteristica più interessante è l’altezza di 8,3m: tanto spazio può essere modificato e
convertito in qualsiasi tipo di locale, a seconda dei gusti e delle necessità. Attualmente, è diviso in
tre parti: nella prima, interessata dal recente restauro che ha riportato alla luce la bellezza
originaria, è stata ricavata una dependance di 110 mq, con un accesso riservato alla piscina. La
seconda parte, che necessita di ristrutturazione interna, è distribuita su due ampi livelli che
coprono una superficie di 380 mq al piano terra e 200 al secondo. La terza parte, infine, è coperta
dai 40mq della squisita limonaia.
Completano al proprietà ca. 5200 mq di PARCO con PISCINA a sfioro di 15x 8 con lastrico solare e giardino circostante. La privacy è garantita dalla
recinzione che corre lungo l’intero perimetro della tenuta, con doppio cancello automatico.
Ultima ma non meno importante caratteristica della Villa è la sua posizione nel cuore di Marsciano:
tutti i servizi sono disponibili e raggiungibili a piedi. La superstrada E 45 dista 6 km e consente di
raggiungere Perugia e il suo aeroporto in circa 25 minuti. Tutte le principali località turistiche
dell’Umbria, Todi, Assisi, Spoleto, Gubbio, Lago Trasimeno, Orvieto sono facilmente raggiungibili
mentre Roma con i suoi aeroporti (Ciampino e Fiumicino) dista meno di due ore.
Beautiful Art Nouveau MANOR HOUSE with large private PARK and tall trees, outbuilding, infinity POOL, WAREHOUSE and lemon house.
The Villa consists of two adjacent buildings. The main one and recently renovated, is distributed over 4 levels for a total of about 720 square meters.
On the ground floor we find the entrance, two bedrooms, a bathroom, the laundry with goods lift, the ironing room, the woodshed, the quadruple GARAGE with internal access and two cellars. The first floor is dedicated to th.









































