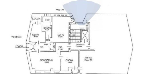
3 rooms Apartment in Ostiglia, Italy No. 26361
$ 65 857
$ 659 per m²
3
Rooms
1
Bathrooms
100
Living space, m²
Ostiglia, Italy
Parameters
Rooms
3
Bathrooms
1
Living space, m²
100
ID
26361
Address
via P. F. Bertioli, 2
Type
Apartment
Completion date
IV quarter, 1966
Features
Features
- Balcony
Indoor facilities
- Storage room


































