668m² Commercial property in Sardinia, Italy No. 370763
$ 620 471
$ 929 per m²
2
Bathrooms
668
Living space, m²
Sardinia, Italy
Parameters
Bathrooms
2
Living space, m²
668
ID
370763
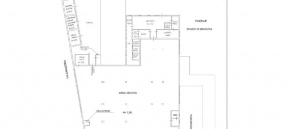
Address
via Sardegna
Type
Commercial property
Features
Indoor facilities
- Storage room
Outdoor features
- Car park










