Property description
C - CASALE TIMO - CASALE GRAGNANOLiving at CASALE GRAGNANO means entering a place where past and present harmoniously blend, creating an environment rich in history yet aligned with modern needs.
Every corner of this residence speaks of agricultural traditions that have characterized the area for centuries, allowing one to rediscover a deep connection with the land.
Here, the beauty of the surrounding nature and the history of the territory intertwine with the most contemporary conveniences, striking a perfect balance between ancient and modern.
Nestled in the Tuscan hills, CASALE GRAGNANO represents a piece of history that tells, through its landscapes and architecture, centuries of agricultural life that have shaped this region. Living here means not only residing in a culture-rich environment but also experiencing something unique, with breathtaking views that change with the seasons.
The apartments strike a perfect balance between historic elegance and modern functionality.
Each space is designed to highlight the historical elements of the residence while ensuring maximum comfort.
Large windows offer panoramic views of the Tuscan hills, and refined, functional details combine to offer superior quality of life and a unique living experience.
CASALE GRAGNANO consists of an independent farmhouse with a pool, a semi-independent farmhouse with a garden, and 5 apartments: 3 three-bedroom and 2 four-bedroom units with a communal pool, three of which feature gardens.
Parking space available.
FARMHOUSE UNIT C - CASALE TIMO
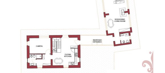
Detached farnhouse on the ground and first floor consisting of a living area, kitchenette, and 2 bathrooms on the ground floor. On the first floor, 2 bedrooms and 2 bathrooms. Parking space. Garden. Pool.
Energy class A.
Photovoltaic solar system;
Underfloor heating;
Heat pump or condensing boiler;
Level 2 electrical system;
Soundproofing and thermal insulation;
Thermal window frames;
Air conditioning system preparation;
Preparation for electric vehicle charging station.
Completion by April 2026.
The images shown are renderings and represent an accurate simulation of the project under construction. The spaces and finishes described are in accordance with the development plan, but there may be slight changes during the completion of the building.
CASA MALVA - 120 sqm - 2 bedrooms, 2 bathrooms
CASA ROSMARINO - 102 sqm - 2 bedrooms, 2 bathrooms
CASA SALVIA - 133 sqm - 2 bedrooms, 2 bathrooms
CASA LAVANDA - 95 sqm - 2 bedrooms, 1 bathroom
CASA TAMERICE - 127 sqm - 2 bedrooms, 1 bathroom
CASALE ERICA - 134 sqm - 3 bedrooms, 3 bathrooms
CASALE TIMO - 140 sqm - 2 bedrooms, 4 bathrooms
Large windows offer panoramic views of the Tuscan hills, and refined, functional details combine to offer superior quality of life and a unique living experience.
CASALE GRAGNANO consists of an independent farmhouse with a pool, a semi-independent farmhouse with a garden, and 5 apartments: 3 three-bedroom and 2 four-bedroom units with a communal pool, three of which feature gardens.
Parking space available.
FARMHOUSE UNIT C - CASALE TIMO
Detached farnhouse on the ground and first floor consisting of a living area, kitchenette, and 2 bathrooms on the ground floor. On the first floor, 2 bedrooms and 2 bathrooms. Parking space. Garden. Pool.
Energy class A.
Photovoltaic solar system;
Underfloor heating;
Heat pump or condensing boiler;
Level 2 electrical system;
Soundproofing and thermal insulation;
Thermal window frames;
Air conditioning system preparation;
Preparation for electric vehicle charging station.
Completion by April 2026.
The images shown are renderings and represent an accurate simulation of the project under construction. The spaces and finishes described are in accordance with the development plan, but there may be slight changes during the completion of the building.
CASA MALVA - 120 sqm - 2 bedrooms, 2 bathrooms
CASA ROSMARINO - 102 sqm - 2 bedrooms, 2 bathrooms
CASA SALVIA - 133 sqm - 2 bedrooms, 2 bathrooms
CASA LAVANDA - 95 sqm - 2 bedrooms, 1 bathroom
CASA TAMERICE - 127 sqm - 2 bedrooms, 1 bathroom
CASALE ERICA - 134 sqm - 3 bedrooms, 3 bathrooms
CASALE TIMO - 140 sqm - 2 bedrooms, 4 bathrooms











