Property description
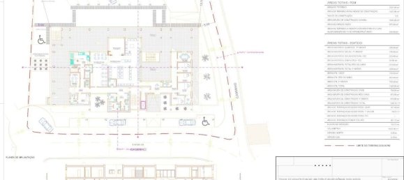
Plot of Land located next to the village of Santa Bárbara de Nexe, ideal to develop a project for a Senior Residence, since the project has already been approved by the Faro City Council for an establishment for 40 users, however it has expired.The land had a project for the construction of a Residential Structure for the Elderly, very close to Santa Bárbara de Nexe. The expired projectPlot of Land located next to the village of Santa Bárbara de Nexe, ideal to develop a project for a Senior Residence, since the project has already been approved by the Faro City Council for an establishment for 40 users, however it has expired.The land had a project for the construction of a Residential Structure for the Elderly, very close to Santa Bárbara de Nexe. The expired project provides for the construction of a 3-storey building (basement, ground floor and 1st floor) with a lift, totaling 1,350 sq.m.The building foresees a basement with 784 sq.m for 6 parking spaces for employees, in addition to several storage and storage areas, technical areas and laundry.
At the ground floor level, with a total implantation of 470 sq.m, we find the reception area, kitchen, personal room, administrative offices, sanitary facilities, health offices, activity rooms, dining room, living room and more of 400 sq.m on covered terraces.In the 879 sq.m on the 1st floor are located the user rooms, 10 singles, 13 doubles and 2 double studios, all with private bathrooms.Outside there is parking for visitors, disabled people and priority vehicles, with a total of 20 spaces.It is about 4 km from Loulé, 12 km from Faro and 3 km from Santa Barbara de Nexe.Features:- Land area – 2.320 sq.m- Total area for construction – 1.350 sq.m- Implantation area - 470 sq.m- Energy Certificate - Exempt - Excluded from the ECS under article n.4 of Decree-Law 118/2013, of 20th of AugustCall us for more information.BALSA INVEST. Reliable Businesses.
…
…






Casa da Portela