Property description
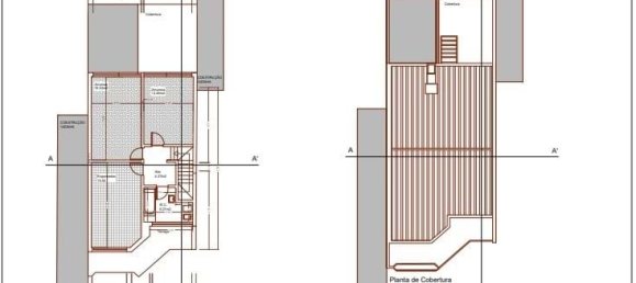
4 Bedroom Duplex Apartment with Sea View in the Historic Center of CascaisIf you are looking for a spacious, modern apartment with a privileged location, this is the perfect opportunity! We present this fantastic 4 bedroom duplex apartment, completely refurbished, located in the Historic Center of Cascais, one of the most emblematic and charming areas of the village.Located on the 1st and 2nd floors of a building without elevator, this apartment stands out for its excellent sun exposure (East West), providing incredible luminosity throughout the day and creating a cozy and comfortable atmosphere in all rooms.With a gross area of 158.42 m², the space is distributed in a balanced way between the two floors, offering functionality and comfort for the whole family.Property Distribution:1st Floor:- Large entrance hall, creating an elegant and inviting reception;- Spacious living room, with access to a generous balcony, perfect for moments of leisure and conviviality;- Modern and fully equipped kitchen with Miele brand appliances, recognized for their quality and durability;- Versatile room, which can be used as an office or guest room, with access to a private balcony;- Complete bathroom, equipped with window, allowing natural ventilation.2nd Floor:- Three large bedrooms, all with built-in wardrobes for greater organization and comfort;- One of the bedrooms has a private balcony with a stunning view of the sea, ideal for relaxing at the end of the day;- Modern and functional bathroom, also with window, ensuring greater luminosity and ventilation.Highlights and Characteristics of the Property: Air conditioning in all rooms, including living room and kitchen, ensuring thermal comfort in any season of the year; Electric shutters and double glazing, providing thermal and acoustic insulation; Pre-installation for solar panels, promoting greater energy efficiency and sustainability; Excellent finishes and high quality materials, ensuring sophistication and durability.Prime locationThis apartment is located in the heart of Cascais, an excellent location that offers an incomparable quality of life. It benefits from all amenities within a few minutes' walk, allowing for a practical and comfortable lifestyle.Beaches just minutes away, ideal for enjoying the mild climate of the region;Nearby train station, facilitating access to Lisbon and other regions;Local commerce, supermarkets and essential services at the doorstep;An area rich in restaurants, cafes and bars, perfect for enjoying the gastronomy and relaxed atmosphere of Cascais;Green and leisure spaces, such as the iconic Visconde da Luz Garden and areas for walks and outdoor walks;Great access to the Marginal and A5, allowing quick travel to Lisbon and other areas of Greater Lisbon.Availability and ConditionsThis property will be available from May 2025.If you are looking for a modern, functional, bright apartment with sea views, this is a unique opportunity! Ideal for both permanent residence and investment, this property combines elegance, comfort and a privileged location.Don't miss this opportunity! Schedule your visit now and come and see this incredible apartment in the heart of Cascais - REF: MBC - 314



























