Property description
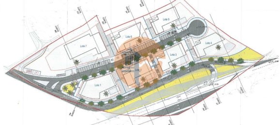
Urban Land Plot for Building Construction in Lagos We present an excellent urban land plot with a total area of 1169sqm, located in a new urbanization equipped with all necessary infrastructures. This plot is ideal for constructing a building with 9 apartments, offering a unique investment opportunity. Project Details: Total land area: 1169sqm Construction area: 900sqm Implantation area: 920sqm BuUrban Land Plot for Building Construction in Lagos We present an excellent urban land plot with a total area of 1169sqm, located in a new urbanization equipped with all necessary infrastructures. This plot is ideal for constructing a building with 9 apartments, offering a unique investment opportunity. Project Details: Total land area: 1169sqm Construction area: 900sqm Implantation area: 920sqm Building configuration: 2 floors above ground level and 2 floors + basement below ground level Apartment types: 5 two-bedroom apartments (T2) and 4 three-bedroom apartments (T3) Parking: 11 private parking spaces and ground level at 23.
7 The construction area does not include basements, garages, exterior covers, pools, and respective technical compartments Additionally, there are 40 public parking spaces for the urbanization Location: The plot is situated in a privileged area, in an elevated position, offering stunning views of Lagos Marina, the city, and the sea. This location not only provides an excellent quality of life but also ensures future appreciation of the investment. Energy Category: Exempt Don’t miss this opportunity to invest in a high-potential project in one of the most sought-after areas of Lagos. For more information or to schedule a visit, please contact us. (ref SU-CS-TU-92064-LT-3)
…
…



Listanza Services Group