Property description
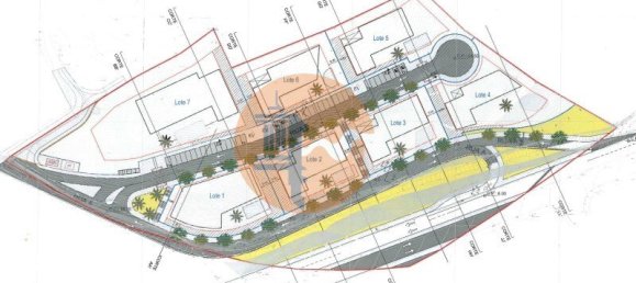
Urban Land Plot for Building Construction in LagosWe present an excellent urban land plot with a total area of 1474m², located in a new urbanization equipped with all necessary infrastructures. This plot is ideal for constructing a building with 12 apartments, offering a unique investment opportunity.Project Details:Total land area: 1474m²Construction area: 1200mUrban Land Plot for Building Construction in LagosWe present an excellent urban land plot with a total area of 1474m², located in a new urbanization equipped with all necessary infrastructures. This plot is ideal for constructing a building with 12 apartments, offering a unique investment opportunity.Project Details:Total land area: 1474m²Construction area: 1200m²Implantation area: 1250m²Building configuration: 2 floors above ground level and 1 floor + basement below ground levelApartment types: 6 two-bedroom apartments (T2) and 6 three-bedroom apartments (T3)Parking: 16 private parking spaces and ground level at 23.
7The construction area does not include basements, garages, exterior covers, pools, and respective technical compartmentsAdditionally, there are 40 public parking spaces for the urbanizationLocation:The plot is situated in a privileged area, in an elevated position, offering stunning views of Lagos Marina, the city, and the sea. This location not only provides an excellent quality of life but also ensures future appreciation of the investment.Energy Category:ExemptDon’t miss this opportunity to invest in a high-potential project in one of the most sought-after areas of Lagos. For more information or to schedule a visit, please contact us. Energy Rating: Exempt #ref:CS-TU-92064-LT-1
…
…



Listanza Services Group