Property description
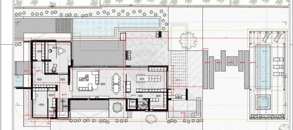
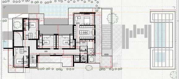
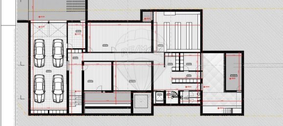
Terreno na Beloura I com vista para o campo de golfe, com projeto em fase de aprovação, para construção de moradia contemporânea. O lote contempla 2100m2 de área total, sendo a área construída de 979m2, distribuídos por; 267m2 no piso superior; 278m2 no piso térreo e cave com 434m2. Está projectado para o 1º Piso: 1 suíte master com amplo closet e casa de banho com chuveiro duplo e duas cubas; 4 suítes com ótimos armários embutidos e casa de banho. No piso térreo: Sala de estar com vista para um espelho de água e uma vista encantadora; Sala de visitas e sala de jantar; Cozinha com área de refeições e despensa; Dois escritórios. Na cave: Piscina coberta; Ginásio; Sala de convívio; Biblioteca; Suíte para hóspedes; Lavandaria com zona de secagem de roupa; Adega; Sala das máquinas; Garagem para 4 viaturas. A Quinta da Beloura é uma zona privilegiada, que oferece vigilância privada 24 horas, campo de golf, picadeiro, ginásios, hipermercados e restaurantes. Além disso, está a poucos minutos das renomeadas escolas TASIS e Carlucci American International School of Lisbon (CAISL). A apenas 3 minutos de carro do Corte Inglês da Beloura e a 5 minutos dos principais centros comerciais. Não perca esta oportunidade única! "A informação disponibilizada não dispensa a sua confirmação e não pode ser considerada vinculativa". *** Plot in Beloura I with view to the golf course, with a project in approval phase for the construction of a contemporary house. The plot comprises a total area of 2100m2, with a built area of 979m2, distributed as follows; 267m2 on the upper floor; 278m2 on the ground floor; and a basement with 434m2. It is designed for the 1st Floor: 1 master suite with a large closet and bathroom with double shower and two sinks; 4 suites with great built-in wardrobes and bathrooms. On the ground floor: Living room overlooking a water mirror and a charming view; Visiting room and dining room; Kitchen with dining area and pantry; Two offices. In the basement: Indoor pool; Gym; Social room; Library; Guest suite; Laundry room with clothes drying area; Wine cellar; Machine room; Garage for 4 cars. Quinta da Beloura is a privileged area, offering 24-hour private security, golf course, equestrian center, gyms, supermarkets, and restaurants. It is also a few minutes away from the renowned TASIS and Carlucci American International School of Lisbon (CAISL). Just a 3-minute drive from El Corte Inglés de Beloura and 5 minutes from the main shopping centers. Do not miss this unique opportunity! "The information provided is not binding and must be confirmed".













