Property description
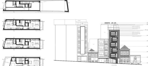
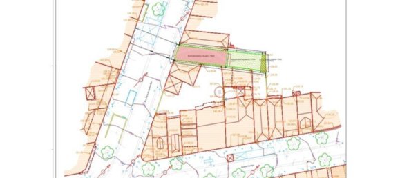
Two plots next to the Metro of Faria Guimarães and Rua do Paraíso.The land of Rua de Faria Guimarães has an area of 185m2 and approved project for a gross construction area of 853m2. The project consists of the construction of a building consisting of basement, r / c, 5 floors and a recessed floor. It is planned to build 10 T0 apartments, 1 T1 apartment, 1 store, condominium room and 1 sTwo plots next to the Metro of Faria Guimarães and Rua do Paraíso.The land of Rua de Faria Guimarães has an area of 185m2 and approved project for a gross construction area of 853m2. The project consists of the construction of a building consisting of basement, r / c, 5 floors and a recessed floor. It is planned to build 10 T0 apartments, 1 T1 apartment, 1 store, condominium room and 1 storage in the basement for each apartment. The apartments have the following areas:5 T0 front, from the 2nd to the 6th floor, with 62.3m2 and balcony with 2m25 T0 rear, from the 2nd to the 6th floor, with 61.
9m2 and balcony with 6.5m21 T1 recessed on the 7th floor with an area of 104.8m2, terrace of 13.5m2 and balcony of 6.5m2On the ground floor there is a store of 18m12 with wc and a common room of 24.3m2, also with wc. The storage of each apartment has areas between 5 and 7m2. The specialties have already been submitted and are awaiting approval.The land of Rua do Paraíso has an area of 302m2 and was submitted a PIP that provides for a total construction area of 1072m2. There is a study for a building of 4 floors and 1 recessed, contemplating 8 T1 apartments with the following areas:1 T1 on the ground floor with 37.50m2 of floor area3 T1 front on the 1st, 2nd and 3rd floors with a useful area of 67m23 T1 rear on the 1st, 2nd and 3rd floors with a useful area of 71.56m21 T1 recessed on the 4th floor with 95m2 of floor area and a terrace with 30m2In this building it is possible to use the basement for storage or for garage, but with entrance by Rua Faria Guimarães. These lands have the advantage of being inserted in the ARU area of Lapa, benefiting from all the associated tax advantages (VAT at 6%, exemption from IMT and IMI), as well as the fact that they are located next to the entrances and the elevator of the metro of Faria Guimarães and Rua do Paraíso.These two plots are currently two autonomous fractions, but initially they were a single fraction, since both plots communicate with each other at the rear of them. If there is interest, it is possible to convert the two fractions into a single fraction. Energy Rating: Exempt #ref:6139
…
…






