Property description
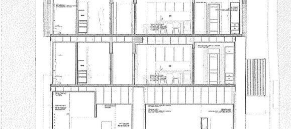
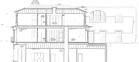
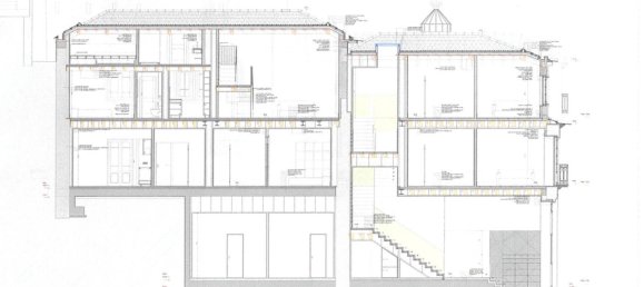
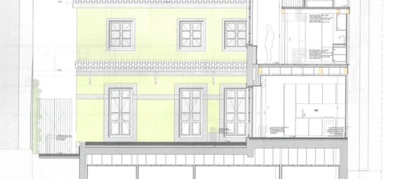
Building at Taipas street with approved project for construction and expansion.The historic building with a wide facade to Taipas street, in the heart of the city, has a garden that confines with the Fernandina Wall.The project foresees the alteration of facades, compartments, accesses and existing structure, expansion to the back on the ground floor and the increase of a floor on the roofBuilding at Taipas street with approved project for construction and expansion.The historic building with a wide facade to Taipas street, in the heart of the city, has a garden that confines with the Fernandina Wall.The project foresees the alteration of facades, compartments, accesses and existing structure, expansion to the back on the ground floor and the increase of a floor on the rooftop, for the construction of 6 apartments and a commerce/services unit.The building is located at Taipas street, in the Historic Centre of Porto classified by UNESCO as a World Heritage Site.
It is part of the Priority Intervention Zone (ZIP), Priority Intervention Area (AIP) and the Critical Area of Urban Recovery and Reconversion (ACRRU).Building Total Area - 410 m2 Total Construction Area - 748 m2Gross Construction Area - 744 m2Implantation Area - 236 m2Nr. of floors - 3 plus mezanineNr. of units - 6 + a comercial unit
…
…




































