Property description
Queres uma casa grande? Esta é a tua nova casa! Uma fantástica moradia com 7 quartos, 4 casas de banho, 3 salas, 2 cozinhas e uma garagem de 100m2.
Esta casa de utilização total foi desenhada para poder ser uma moradia bi familiar, podendo ser facilmente convertida em três ou quatro apartamentos, tendo aqui uma grande oportunidade na ótica do investimento com um retorno de 6% ou se tem uma família numerosa, esta é a casa que procura!
Esta casa com 588m2 de construção encontra-se dividida da seguinte forma:
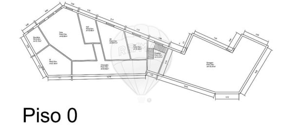
Rés-do-chão:
8 m2 - Hall de Entrada;
50m2 - Sala de Estar com recuperador de calor;
10m2 - Escritório
19m2 - Área de Circulação;
10m2 - Casa de Banho com base de duche;
18m2 - Quarto 1 com roupeiro;
13m2 - Quarto 2;
13m2 - Hall de ligação garagem zona privada do rés-do-chão sala principal do 1º andar com pequena arrecadação no aproveitamento do vão das escadas;
100m2 - Garagem para 7 carros com zona de lagar e ligação a pátio a tardoz da casa;
15m2 - Pátio a tardoz da casa;
40m2 - Pátio na parte frontal da casa que serve a garagem.
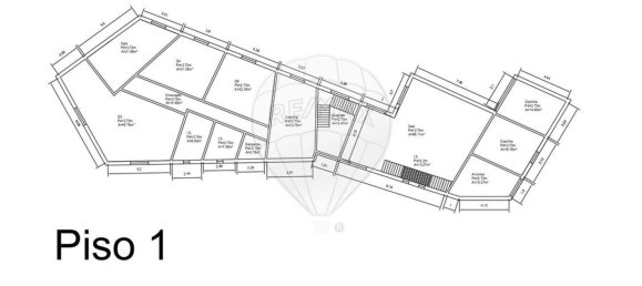
1º Andar:
22m2 - Terraço no 1º andar que permite o acesso direto da rua para a sala principal;
60m2 - Sala Principal com lareira e zona de lazer;
3m2 - Lavabo Social;
16m2 - Cozinha Principal com placa forno e muita arrumação;
14m2 - Cozinha Rústica com forno a lenha e Churrasqueira;
13m2 - Lavanderia, com espaço para máquina de secar e lavar e armários para arrumação;
20m2 - Cozinha tradicional, com armários;
12m2 - Corredor de circulação na zona privada;
4m2 - Dispensa de apoio;
7m2 - Casa de banho simples;
10m2 - Quarto 1 com roupeiro;
13m2 - Quarto 2 Usado como escritório;
18m2 - Suite com closet e Casa de banho privativa;
12m2 - Closet com armários;
7m2 - Casa de Banho da Suite com Poliban;
23m2 - Sala de estar com Lareira e Bar;
5m2 - Varanda de Ligação do exterior a sala.
2º Andar:
10m2 - Área de circulação;
17m2 - Master suite com chão em madeira natural closet e casa de banho privada e terraço privado;
10m2 - Closet com 5 armários de 2 portas;
12m2 - Casa de banho da Master Suite com lavatório duplo, banheira e base de duche;
30m2 - Terraço da Master suite.
A casa conta com estores elétricos no 2º andar, aquecimento central a diesel, termoacumulador para águas sanitárias, painéis solares para aquecimento de águas, tetos e contraplacado marítimo, portas em carvalho, pavimentos em cerâmica e madeira natural, pré-instalação de som ambiente.
Localizada em Malga, uma pitoresca localidade na freguesia de Santo Quintino, concelho do Sobral de Monte Agraço, este local oferece tudo o que o campo tem para dar, vistas de serra, campos de cultivo, uma vida tranquila para quem quer desacelerar o ritmo de vida. Esta localidade tem todas as comodidades, café, mercearia, e transportes públicos com ligação para os principais destinos e fica ainda a uma distância de:
10 minutos do Sobral de Monte Agraço;
15 minutos da Venda do Pinheiro;
18 minutos de Torres Vedras;
20 minutos de Arruda dos Vinhos;
20 minutos de Mafra;
35 minutos de Lisboa.
Marque já a sua visita e venha conhecer esta magnífica casa que lhe oferece várias possibilidades, uma verdadeira casa para toda a família!
*As informações constantes do presente anúncio não são vinculativas e não dispensam a consulta da documentação legalmente exigida.
Do you want a big house?
This is your new home! A fantastic house with 7 bedrooms, 4 bathrooms, 3 living rooms, 2 kitchens and a 100m2 garage.
This full-use house was designed to be a two-family house, and can be easily converted into three or four apartments, providing a great opportunity from an investment perspective with a return of 6% or if you have a large family, this is the house you are looking for!
This house with 588m2 of construction is divided as follows:
Ground floor:
8 m2 - Entrance Hall;
50m2 - Living room with fireplace;
10m2 - Office
19m2 - Circ.

















































Listanza Services Group