Property description
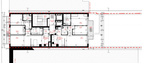
Urban lot with approved architectural project, located on Avenida Elias Garcia, in the Campo Pequeno area, Lisbon. Inserted in a consolidated urban fabric, the project includes the construction of a building with 10 residential units and 12 parking spaces, spread over 7 floors above ground and 2 basement floors. The proposal includes 8 T2 apartments and 2 T3 duplex apartments, with average areas oUrban lot with approved architectural project, located on Avenida Elias Garcia, in the Campo Pequeno area, Lisbon. Inserted in a consolidated urban fabric, the project includes the construction of a building with 10 residential units and 12 parking spaces, spread over 7 floors above ground and 2 basement floors. The proposal includes 8 T2 apartments and 2 T3 duplex apartments, with average areas of 80 m² and 165 m², respectively. Located in the parish of Avenidas Novas, it benefits from proximity to public facilities, transport network, higher education establishments and areas of commerce and services.
…







Listanza Services Group