Квартира с 4 комнатами в Кирхберг ан дер Пилах, Австрия № 187403
$ 314 199
$ 3 080 цена за м²
4
Комнат
1
Ванных
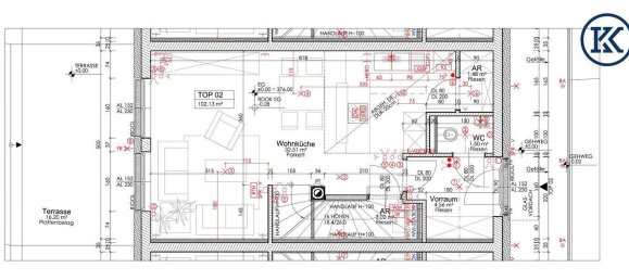
102
Жилая площадь, м²
Кирхберг ан дер Пилах, Австрия
Параметры
Комнат
4
Ванных
1
Жилая площадь, м²
102
ID
187403
Тип
Квартира
Дата сдачи
IV квартал, 2013
Особенности
Особенности
- Балкон
- Терраса
Внутренняя инфраструктура
- Кладовая
Внешняя инфраструктура
- Парковка
- Сад















































