Property description
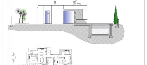
NEW CONSTRUCTION VILLA IN CALPENewly built villa located in one of the residential areas preferred by all Calpe residents, due to its proximity to the town center, the beaches and at the same time for being a quiet but safe area, since it is located on the outskirts of the urban area.
The house has been planned on a single floor, which makes this project practical and comfortable.
The entire plot is fenced and has a hedge of cypresses inside, which provides privacy and a pleasant environment.
From the main entrance to the house we access a hall, from which on the left we access the day area, consisting of a living room with a dining room and an open kitchen with an island a laundry area. From the living room we can access the outside, where we have a covered porch area with a barbecue and a large terrace with a 40m2 pool.
On the right side of the house is the rest area, with 3 bedrooms: the master suite with dressing room and bathroom and two more bedrooms that share a bathroom.
Outside there is a parking area with a sail-shaped pergola for two cars.
Calpe has a wonderful mix of old Valencian culture and modern tourist facilities. It is a great base from which to explore the local area or enjoy the many local beaches. Calpe alone has three of the most beautiful sandy beaches on the coast.
Calpe also has two sailing clubs: Real Club Náutico de Calpe and Club Náutico de Puerto Blanco.
The fishing town of Calpe has now become a tourist magnet, the town is in an ideal location, easily accessible via the A7 motorway and the N332 which runs from Valencia to Alicante; it is approximately 1 hour drive from Alicante airport and 1.5 hours to Valencia airport.
* There is an extended version of the project. Ask for more information, WE HAVE DIFFERENT TYPES OF PROJECTS, DO NOT HESITATE TO CONTACT US.
We are specialized in new construction throughout the Costa Blanca. Visit our website to discover the wide range of properties that we manage for you.
On our website we offer you complete and tailor-made solutions with all the services you need: the possibility of financing up to 100%+expenses with our financial partners, comprehensive reforms, removals, furniture storage, inheritance management, heritage companies, golden visa, legal advice and tax. WE TAKE CARE OF EVERYTHING!... You and your loved ones only have to worry about ENJOYING your new home.













TENZA GROUP
Rusol Prime
Alicante Real Estate