Property description
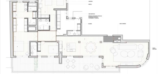
The Well Come Home presenta este impresionante ático en una 8ª planta de un edificio de Gutiérrez Soto de 1954, en Barrio de Salamanca. La vivienda hace esquina y disfruta de 8 ventanales a la calle, así como de una terraza de 58 m2 con salida desde la zona social y desde dos de los dormitorios. El edificio tiene un buen portal, con acabado muy elegante en madera, y servicio de portería. Además se accede a partir de un espacio ajardinado con árboles.La vivienda cuenta con 330 m2 catastrales (287 m2 de piso y 43 m2 de zonas comunes) más 58 m2 de terraza. Este maravilloso piso ha sido objeto de una reforma integral firmada por el prestigioso arquitecto Rafael Robledo.Zona social: nada más entrar a la vivienda descubrimos un enorme espacio diáfano para disponer del salón, comedor, cocina abierta y acceso a la terraza de 58 m2. Toda la carpintería exterior es de Cortizo con perfil fino y tiradores ocultos creando un visión muy limpia y luminosa. El suelo, en madera de roble clara, es perfecto para el interiorismo de la vivienda. La cocina cuenta con una gran isla central en forma de cubo, totalmente forrada en espejo, donde se ubica la zona de cocción y el fregadero. La disposición de la cocina invita a cenas informales en la terraza o más elegante en el comedor. Completa la zona social un bonito aseo de cortesía con puertas hasta el techo en un acabado que recuerda al acero cortén.Zona de noche: la zona de dormir está compuesta por tres dormitorios de buen tamaño, con sus tres cuartos de baño en suite. Dos de los dormitorios tienen salida directa a la terraza. El dormitorio principal, muy luminoso, cuenta además con un gran walk-in closet, zona de tocador o escritorio y bañera exenta.Finalmente, la vivienda tiene cuarto de servicio con su cuarto de baño, zona de lavandería y acceso independiente desde la escalera de servicio.

















Lucas Fox
Coldwell Banker
Spain Homes