Property description
NEW BUILD RESIDENTIAL COMPLEX WITH THE SEA VIEW IN FINESTRATNew Build Residential complex with the sea views in Finestrat.
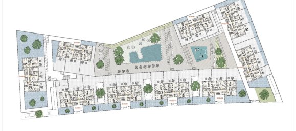
Complex made up of 9 blocks of 9 apartments each.
There are 3 types of homes: 27 penthouses with a private solarium, 27 on the first floor with terraces and 27 ground floors with private garden.
All within a private and exclusive environment, to enjoy sports activities
and entertainment.
The houses have their modern and exclusive design, and are equipped with the latest
construction technologies applied to comfort, thermal and acoustic insulation, aerothermal energy, air conditioning, etc.
Designed in a private luxury environment with community pool with separate area for children and adults. Large private garden areas. Gym with jacuzzi, changing rooms and showers. Relaxation area. Children's play area.
From here you can enjoy privileged views of the sea Mediterranean, as well as the fantastic and spectacular Skyline of Benidorm.
Finestrat located in the Marina Baixa region of the Costa Blanca, close to neighbouring Benidorm and about 40 kilometres from the city of Alicante and the international airport.
Benidorm is just a five-minute drive from the properties and offers all the services you would need including shops, bars, restaurants, supermarkets, banks, pharmacies and several private international schools.
Close to the beaches of Levante, Poniente and Cala de Finestrat, with more than 6km in length that are among the best in Europe awarded by the European Union with Blue Flags.
All leisure services such as the theme parks of Aqua Natura, Terra Mítica, Terra Natura, Aqualandia and Mundomar, Sierra Cortina and Villaitana Golf courses, hiking and climbing in Puig Campana an incomparable natural setting or enjoy of nautical sports.
Designed in a private luxury environment with community pool with separate area for children and adults. Large private garden areas. Gym with jacuzzi, changing rooms and showers. Relaxation area. Children's play area.
From here you can enjoy privileged views of the sea Mediterranean, as well as the fantastic and spectacular Skyline of Benidorm.
Finestrat located in the Marina Baixa region of the Costa Blanca, close to neighbouring Benidorm and about 40 kilometres from the city of Alicante and the international airport.
Benidorm is just a five-minute drive from the properties and offers all the services you would need including shops, bars, restaurants, supermarkets, banks, pharmacies and several private international schools.
Close to the beaches of Levante, Poniente and Cala de Finestrat, with more than 6km in length that are among the best in Europe awarded by the European Union with Blue Flags.
All leisure services such as the theme parks of Aqua Natura, Terra Mítica, Terra Natura, Aqualandia and Mundomar, Sierra Cortina and Villaitana Golf courses, hiking and climbing in Puig Campana an incomparable natural setting or enjoy of nautical sports.



















Rusol Prime
Alicante Real Estate
Santos Costa Blanca