Property description
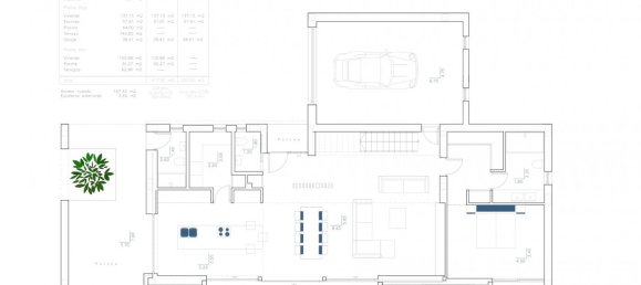
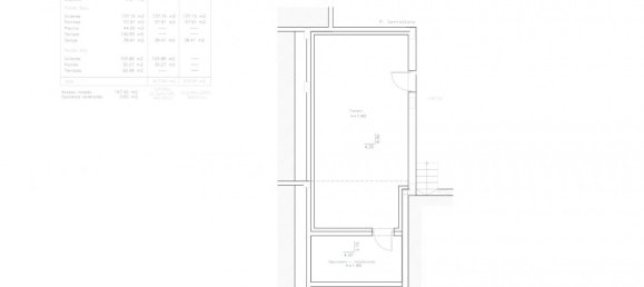
NEW BUILD LUXURY VILLA IN CALPE New Build villa located in Calpe, near the beach and shops, restaurants and services, all within 1km. It is a quiet area where all the surrounding houses have large plots so it enjoys great privacy and tranquillity. Specifically, the plot of this project also has a large size of 1.550m2, it is flat with which you can enjoy a large garden. The orientation is south, and it has an open view towards the "Peñón de Ifach" and you can see a little of the sea between the buildings. The house is of an exquisite design, as well as its interior finishes. It has a garage, 4 bedrooms, five bathrooms (one exterior) and a guest toilet, a large storage room in the basement. The covered constructed area is 430 m2 plus 200 m2 of terraces. The pool is 11m and is overflowing with the water level with the terrace. Of course it includes a modern kitchen with island all the appliances, air conditioning system by Aerotermia (underfloor heating and air conditioning by conducts), bathroom furniture, built-in wall taps, technical LED lighting, large-format porcelain tiles floor, complete garden with automatic irrigation system etc. Approximate date of completion is for the spring of 2023. Calpe, one of the towns of La Marina Alta, lies on the northern coast of the province of Alicante, surrounded by the towns of Altea, Benidorm, Teulada-Moraira, Benissa. Calpe has a wonderful mixture of old Valencian culture and modern tourist facilities. It is a great base from which to explore the local area or enjoy the many local beaches. Calpe alone has three of the most beautiful sandy beaches on the coast. Calpe also has two Sailing Clubs: Real Club Náutico de Calpe and Club Náutico de Puerto Blanco. Fishing village of Calpe now transformed into a tourist magnet, the town sits in an ideal location, easily accessed by the A7 motorway and the N332 that runs from Valencia to Alicante; its approximately 1 hour drive from the airport at Alicante and 1,5 hours to Valencias airport.












Grupo Biosfera
Santos Costa Blanca
Rusol Prime