Property description
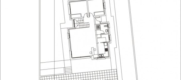
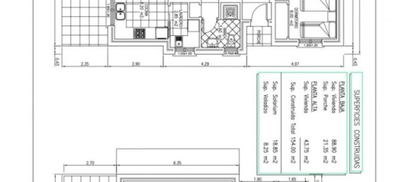
Modern villa in Tormos , Costa Blanca, Alicante Province . This is a project to build a villa of minimalist design with straight and angled , on a plot of 675 m2 lines. The house is fully south facing so has sun all day . The Upper House is an independent body, which also contrasts achieved by its different color with dark gray tiles. The house has two floors, each separated by an open staircase , with a total of 154 m2. The ground floor is distributed in hall , living room , covered terrace, open kitchen , laundry, toilet , shower and two bedrooms. Upstairs there is a master bedroom with dressing room and en suite. Apart from the room leads to a private balcony terrace complete with stainless steel railing .The price also includesa swimming pool 8 x 4 with focus and force staircase , terrace of approx. 40 m2 , parking clad withnatural stone ( approx. 30 m2), pedestrian access from the street to the house wall on both edges of the plotwith the street, sliding door for car access , pedestrian gate and intercom ,and of course, a high quality of construction adapted to the style of the house. Construction project, license, insurance , or any other year guaranteerequired for housing construction documentation are included. Since this is aproject the client may choose in advance any change in the level or in thequality of construction . Tormos is a quiet little village , located in theheart of the Costa Blanca, just 20 minutes from the sandy beaches , 1 hour fromthe airports of Alicante and Valencia, and only 15 minutes fromthe largest shopping center the area.










GR Sunshine Properties
JUST MURCIA PROPERTY
Casas de Alicante