Property description
Résidence L'Aurore au BouveretValimmobilier SA a le plaisir de vous présenter ce nouveau projet de construction d'un petit immeuble de 5 appartements modernes à deux pas du Lac Léman, des transports publics et des écoles.
Ce petit bâtiment (2 appartements par étage + 1 attique) vous offrira calme et tranquillité ainsi qu'un ensoleillement optimal. Réservez votre appartement de 2.5 pièces et de 65 m2 habitables avec un agréable balcon de 10 m2 à l'ouest. Ce nouveau projet de construction est doté d’une architecture contemporaine. L'immeuble est accessible aux personnes à mobilité réduite et offrira à ses futurs habitants un cadre de vie des plus agréables.
La pièce à vivre est lumineuse et très agréable avec ses grandes baies vitrées. L'immeuble sera bâti par des entrepreneurs reconnus de la région, érigé avec des matériaux de qualité et bénéficiera d'une pompe à chaleur et de panneaux solaire afin de minimiser les charges de copropriété.
La distribution de ce très bel appartement est la suivante :
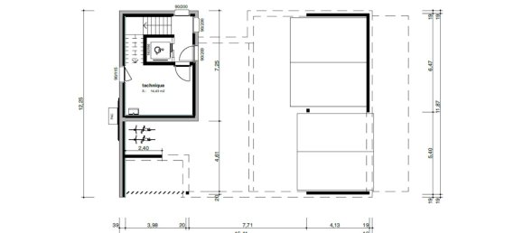
• Hall d'entrée avec armoire encastrée et espace pour colonne de lavage
• Lumineuse pièce à vivre de 28 m2 avec cuisine ouverte sur le séjour et accès au balcon
• Chambre de 14 m2 avec accès au balcon
• Salle d'eau de 5 m2 avec douche
• Balcon de 10 m2 à l'ouest
Places de parc (en sus et obligatoire) :
• 1 x place de parc extérieure à CHF 15'000.-
• 1 x place de parc couverte à CHF 30'000.-
Annexes :
• Cave/galetas de 5 m2 dans les combles
• Espace pour vélos au rez-de-chaussée
Caractéristiques :
• Le permis de construire est en force
• Grands balcons
• Finitions de qualité au choix des acheteurs
• A 10 minutes à pied de la gare et du port du Bouveret
• Chauffage au sol
• Emplacement pour colonne de lavage dans l'appartement
• Ascenseur
• Proche des commodités, des écoles et des commerces (Migros et Denner)
• Remise des clefs prévue : fin 2027
Prix de vente : CHF 475'000
Appartement : CHF 430'000
Places de parc : CHF 45'000
Lots de cette nouvelle promotion :
Lot 01 – 3.5 pièces - 111 m2 - 1er étage - CHF 630’000
Lot 02 – 2.5 pièces - 65 m2 - 1er étage - CHF 430’000
Lot 03 – 3.5 pièces - 110 m2 - 2e étage - CHF 630’000
Lot 04 – 2.5 pièces - 65 m2 - 2e étage - CHF 430’000
Lot 05 – 4.5 pièces - 138 m2 - Attique - CHF 850’000
Remarques : Les villages du Bouveret et des Evouettes font partie de la commune de Port-Valais (District de Monthey). Cette commune au bout du lac Léman possède de nombreuses commodités (restaurants, épiceries, banque, port, crèche-garderie, UAPE, écoles, bibliothèque, ludothèque, activités touristiques, etc...). Le canton du Valais est renommé pour ses nombreux avantages sociaux et ses taxes modestes (caisse-maladie, impôt sur les véhicules, prestations en capital et autres impôts). Le village du Bouveret est très connu pour ses parcs de loisirs Aquaparc et Swiss Vapeur Parc ainsi que pour sa plage, son port et sa Marina.
Ce bien est vendable comme résidence secondaire ou principale et également pour les personnes domiciliées à l'étranger.
Vous souhaitez obtenir des précisions, visiter quartier ? Contactez-moi par téléphone, courriel ou passer nous rencontrer (sur rendez-vous) dans l'une de nos agences du Chablais (Aigle, Collombey-Muraz ou Torgon) et nous vous renseignerons très volontiers.
• Hall d'entrée avec armoire encastrée et espace pour colonne de lavage
• Lumineuse pièce à vivre de 28 m2 avec cuisine ouverte sur le séjour et accès au balcon
• Chambre de 14 m2 avec accès au balcon
• Salle d'eau de 5 m2 avec douche
• Balcon de 10 m2 à l'ouest
Places de parc (en sus et obligatoire) :
• 1 x place de parc extérieure à CHF 15'000.-
• 1 x place de parc couverte à CHF 30'000.-
Annexes :
• Cave/galetas de 5 m2 dans les combles
• Espace pour vélos au rez-de-chaussée
Caractéristiques :
• Le permis de construire est en force
• Grands balcons
• Finitions de qualité au choix des acheteurs
• A 10 minutes à pied de la gare et du port du Bouveret
• Chauffage au sol
• Emplacement pour colonne de lavage dans l'appartement
• Ascenseur
• Proche des commodités, des écoles et des commerces (Migros et Denner)
• Remise des clefs prévue : fin 2027
Prix de vente : CHF 475'000
Appartement : CHF 430'000
Places de parc : CHF 45'000
Lots de cette nouvelle promotion :
Lot 01 – 3.5 pièces - 111 m2 - 1er étage - CHF 630’000
Lot 02 – 2.5 pièces - 65 m2 - 1er étage - CHF 430’000
Lot 03 – 3.5 pièces - 110 m2 - 2e étage - CHF 630’000
Lot 04 – 2.5 pièces - 65 m2 - 2e étage - CHF 430’000
Lot 05 – 4.5 pièces - 138 m2 - Attique - CHF 850’000
Remarques : Les villages du Bouveret et des Evouettes font partie de la commune de Port-Valais (District de Monthey). Cette commune au bout du lac Léman possède de nombreuses commodités (restaurants, épiceries, banque, port, crèche-garderie, UAPE, écoles, bibliothèque, ludothèque, activités touristiques, etc...). Le canton du Valais est renommé pour ses nombreux avantages sociaux et ses taxes modestes (caisse-maladie, impôt sur les véhicules, prestations en capital et autres impôts). Le village du Bouveret est très connu pour ses parcs de loisirs Aquaparc et Swiss Vapeur Parc ainsi que pour sa plage, son port et sa Marina.
Ce bien est vendable comme résidence secondaire ou principale et également pour les personnes domiciliées à l'étranger.
Vous souhaitez obtenir des précisions, visiter quartier ? Contactez-moi par téléphone, courriel ou passer nous rencontrer (sur rendez-vous) dans l'une de nos agences du Chablais (Aigle, Collombey-Muraz ou Torgon) et nous vous renseignerons très volontiers.







