Property description
This superb chalet was completely renovated in 2024. Its location in a privileged and peaceful setting with fantastic views of the Alps makes it a fantastic offer. A bright workshop with its own entrance complete the building. It has all the amenities you need for a comfortable holiday or a permanent home.Chalet available to non-Swiss living abroad and as a second home for your holidays
5 bedroom chalet :
• Balanced living surface area approx. 300 sqm (interior 270 sqm, terraces and balconies 90 sqm, technical room 10 sqm, plot approx.
1239 sqm)
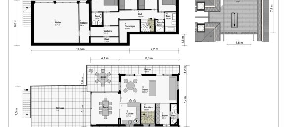
Upper ground floor :
• Entrance with built-in wardrobe
• Spacious living space, French windows opening onto the northwest-facing balcony in front of the Alps
• Big modern open kitchen with wooden bar (induction hob, extractor, oven, steamer, dishwasher, big fridge, deep freezer)
• Big bright veranda with large sliding bay doors opening onto the large terrace, Swedish stove
• Bathroom (shower, WC, washbasin)
Mezzanine :
• Spacious mezzanine across the entire width of the chalet, north-facing balcony
Lower ground floor :
• Entrance hall
• Lobby/vestiary
• Master bedroom with en-suite bathroom (shower, WC, washbasin), French window opening onto the driveway, north-facing window
• Double bedroom, north-facing window
• Schlafzimmer, north-facing window
• Schlafzimmer, north-facing window
• Large bathroom (bathtub, shower, WC, double washbasin)
• Independent workshop with large full-length windows
• Cellar
• Technical room
Exteriors :
• Large northwest-facing terrace enclose by a glass and a metal banister
• 2 north-facing balconies
• Lovely level garden with a fountain
• 2 big garden sheds
• Wooden shed
Parking facilities :
• 3 outdoor parking spaces
• By parking in a row, it is possible to park several additional cars.
Situation :
• Quiet surroundings in the greenery with an unobstructed view of the mountains
• Easy car access all year round
• PostBus stop 1’550 m
• Free shuttle bus stop (winter) 150 m
• Centre 800 m
• Cable car departure 2’350 m
• Funicular 1’250 m
• Plot 600 sqm
• Building zone H20
• Altitude 1385 m
Feature :
• Breathtaking views
• Excellent sunshine
• Metal windows
• Glass and metal terrace railings
• Underfloor oil-fired central heating
Refurbishments :
• Built in 1999
• Totally refurbished in 2024
Would you like more information, the complete dossier ? I also remain at your disposal for a visit on-site
Haute-Nendaz :
• Family-friendly, Haute-Nendaz is an enjoyable place for either holiday or as a main residence. You will find all the facilities, various shops and services
• It is very well served by the PostBus line Sion-Nendaz and easily accessible by car all year round on a good road
• The 4 Vallées ski area and its extensive network of lifts offer magnificent slopes with guaranteed snow, for all snow sports and for all levels
• Lots of walks available setting off from Haute-Nendaz : bisses (most pleasant waterside walks), forest and mountain paths, Tracouet, Cleuson dam, Japanese Garden, glacial lake of Grand-Desert, etc.
• The lifts operate in summer, allowing you to enjoy the benefits of the mountain air and effortlessly discover various breathtaking panoramic views
• Outdoor swimming pool, tennis courts, spa, skating rink
Upper ground floor :
• Entrance with built-in wardrobe
• Spacious living space, French windows opening onto the northwest-facing balcony in front of the Alps
• Big modern open kitchen with wooden bar (induction hob, extractor, oven, steamer, dishwasher, big fridge, deep freezer)
• Big bright veranda with large sliding bay doors opening onto the large terrace, Swedish stove
• Bathroom (shower, WC, washbasin)
Mezzanine :
• Spacious mezzanine across the entire width of the chalet, north-facing balcony
Lower ground floor :
• Entrance hall
• Lobby/vestiary
• Master bedroom with en-suite bathroom (shower, WC, washbasin), French window opening onto the driveway, north-facing window
• Double bedroom, north-facing window
• Schlafzimmer, north-facing window
• Schlafzimmer, north-facing window
• Large bathroom (bathtub, shower, WC, double washbasin)
• Independent workshop with large full-length windows
• Cellar
• Technical room
Exteriors :
• Large northwest-facing terrace enclose by a glass and a metal banister
• 2 north-facing balconies
• Lovely level garden with a fountain
• 2 big garden sheds
• Wooden shed
Parking facilities :
• 3 outdoor parking spaces
• By parking in a row, it is possible to park several additional cars.
Situation :
• Quiet surroundings in the greenery with an unobstructed view of the mountains
• Easy car access all year round
• PostBus stop 1’550 m
• Free shuttle bus stop (winter) 150 m
• Centre 800 m
• Cable car departure 2’350 m
• Funicular 1’250 m
• Plot 600 sqm
• Building zone H20
• Altitude 1385 m
Feature :
• Breathtaking views
• Excellent sunshine
• Metal windows
• Glass and metal terrace railings
• Underfloor oil-fired central heating
Refurbishments :
• Built in 1999
• Totally refurbished in 2024
Would you like more information, the complete dossier ? I also remain at your disposal for a visit on-site
Haute-Nendaz :
• Family-friendly, Haute-Nendaz is an enjoyable place for either holiday or as a main residence. You will find all the facilities, various shops and services
• It is very well served by the PostBus line Sion-Nendaz and easily accessible by car all year round on a good road
• The 4 Vallées ski area and its extensive network of lifts offer magnificent slopes with guaranteed snow, for all snow sports and for all levels
• Lots of walks available setting off from Haute-Nendaz : bisses (most pleasant waterside walks), forest and mountain paths, Tracouet, Cleuson dam, Japanese Garden, glacial lake of Grand-Desert, etc.
• The lifts operate in summer, allowing you to enjoy the benefits of the mountain air and effortlessly discover various breathtaking panoramic views
• Outdoor swimming pool, tennis courts, spa, skating rink


























