Property description
Address Jumeirah Resort is a new premium real estate located in one of the most prestigious locations in Dubai, along the Jumeira Beach in Dubai Marina. Surrounded by the Persian Gulf on one side, and the avant-garde panorama of Dubai on the other, Jumeirah Beach Residence (JBR) is the center for connoisseurs of beach bliss and luxury and the advantages of a modern metropolis.Features of the complex:
• The location of the complex in one of the most prestigious areas of Dubai, near Jumeirah Beach, makes it easy to get to other popular areas of the city or stay and enjoy the charm of Dubai Marina.
• Unique landmark architectural 77-storey building.
• Direct access to a private beach.
• Panoramic views of the Arabian Gulf, Ain Dubai and Bluewaters Island.
• Infinity pool located at 310 meters.
• Unique interiors of the apartments, designed in the spirit of La dolce vita.
• A gym available at your service at any time.
• Spa centers.
• Restaurants ready to offer the finest dishes from renowned chefs.
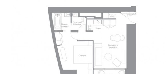
Features of Residence Apartments:
• Each option includes a comfortable bedroom with an en-suite bathroom, an exquisite living room, a dressing room and a studio kitchen.
• Kitchen cabinets with worktop, extractor hood, sink with mixer.
• Wardrobes in each bedroom.
• There is a private balcony with an area of 8 sq. m, with stunning views of the Dubai Marina.
• Direct beach access.
• Swimming pool and state-of-the-art gym on the ground floor of the stylobate.
• One parking space for one apartment.
• 2 years of free service.
Direct sale from the developer without agency commissions.
Full support for the execution of the transaction and the possibility of making a purchase "online". Free consultation, as well as services for obtaining a residence permit, opening company free zones, etc.
Customer privilege and complete confidentiality.
The company "Mi Casa" is a leader in the real estate market since 2007 (license from the state. RERA. 1470) and specializes exclusively in luxury real estate and excellent investment opportunities.
Contact us and we will answer all your questions.
• Restaurants ready to offer the finest dishes from renowned chefs.
Features of Residence Apartments:
• Each option includes a comfortable bedroom with an en-suite bathroom, an exquisite living room, a dressing room and a studio kitchen.
• Kitchen cabinets with worktop, extractor hood, sink with mixer.
• Wardrobes in each bedroom.
• There is a private balcony with an area of 8 sq. m, with stunning views of the Dubai Marina.
• Direct beach access.
• Swimming pool and state-of-the-art gym on the ground floor of the stylobate.
• One parking space for one apartment.
• 2 years of free service.
Direct sale from the developer without agency commissions.
Full support for the execution of the transaction and the possibility of making a purchase "online". Free consultation, as well as services for obtaining a residence permit, opening company free zones, etc.
Customer privilege and complete confidentiality.
The company "Mi Casa" is a leader in the real estate market since 2007 (license from the state. RERA. 1470) and specializes exclusively in luxury real estate and excellent investment opportunities.
Contact us and we will answer all your questions.













Deals Experts Real Estate
Elysian Real Estate Broker