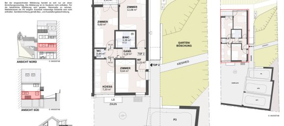
Квартира с 4 комнатами в Инсбрук-Штадт, Австрия № 128273
$ 486 048
$ 121 512 цена за м²
4
Комнат
4
Жилая площадь, м²
Инсбрук-Штадт, Австрия
Параметры
Комнат
4
Жилая площадь, м²
4
ID
128273
Адрес
Felseckstraße
Тип
Квартира
Дата сдачи
IV квартал, 1968
Особенности
Внешняя инфраструктура
- Парковка



3SI Immogroup