Земельный участок 883м² в Занкт Андра-Вёрдерн, Австрия № 142596
$ 645 240
$ 731 цена за м²
883
Жилая площадь, м²
Занкт Андра-Вёрдерн, Австрия
Параметры
Жилая площадь, м²
883
ID
142596
Тип
Земельный участок
Площадь участка, м²
883
Особенности
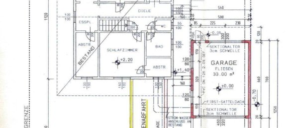
Внутренняя инфраструктура
- Гараж































