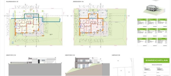
Земельный участок 800м² в Занкт Марин, Австрия № 156736
$ 257 708
$ 322 цена за м²
800
Жилая площадь, м²
Занкт Марин, Австрия
Параметры
Жилая площадь, м²
800
ID
156736
Тип
Земельный участок
Площадь участка, м²
800



Immo-Company Haas & Urban Immobilien GmbH