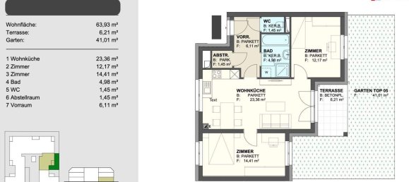
Квартира с 3 комнатами в Пурбах ам Нойзидлер Зе, Австрия № 231203
$ 263 723
$ 4 186 цена за м²
3
Комнат
1
Ванных
63
Жилая площадь, м²
Пурбах ам Нойзидлер Зе, Австрия
Параметры
Комнат
3
Ванных
1
Жилая площадь, м²
63
ID
231203
Тип
Квартира
Дата сдачи
IV квартал, 2020
Особенности
Особенности
- Балкон
- Терраса
Внутренняя инфраструктура
- Кладовая
- Лифт
- Гараж
Внешняя инфраструктура
- Парковка
- Сад












