Коммерческая недвижимость с 3 комнатами в Дойч-Ваграм, Австрия № 82278
$ 449 421
$ 5 287 цена за м²
10.04.2025
$ 484 122
3
Комнат
1
Ванных
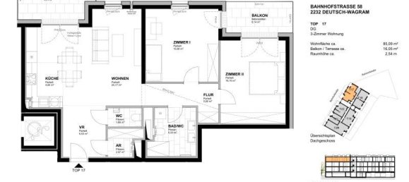
85
Жилая площадь, м²
Дойч-Ваграм, Австрия
Параметры
Комнат
3
Ванных
1
Жилая площадь, м²
85
ID
82278
Тип
Коммерческая недвижимость
Дата сдачи
IV квартал, 2021
Особенности
Особенности
- Балкон
- Терраса
Внутренняя инфраструктура
- Кладовая
- Гараж
Внешняя инфраструктура
- Парковка









