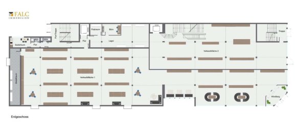
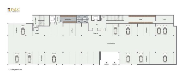
Здание 5314м² в Вестервальд, Германия № 341431
$ 4 496 496
$ 846 цена за м²
5314
Жилая площадь, м²
Вестервальд, Германия
Параметры
Жилая площадь, м²
5314
ID
341431
Тип
Здание
Площадь участка, м²
2493
Дата сдачи
IV квартал, 1996
Особенности
Особенности
- Балкон
Внутренняя инфраструктура
- Лифт





























