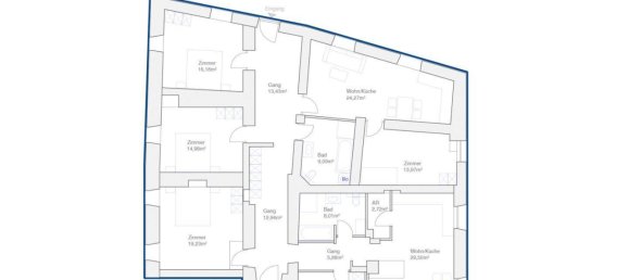
7غرفة شقة في Aldrans, Austria رقم 109459
$ 969 754
$ 5 388 لكلّ متر مربّع؛
7
غرف
2
الحمامات
180
غرف المعيشة, م2
Aldrans, Austria
الإعدادات
غرف
7
الحمامات
2
غرف المعيشة, م2
180
ID
109459
نوع
شقة
المميزات
المرافق الداخلية
- غرفة تخزين
- مرآب
المرافق الخارجية
- موقف السيارات













