4 غرف نوم منزل في St. Johann in Tirol, Austria رقم 115293
$ 4 430 538
$ 21 933 لكلّ متر مربّع؛
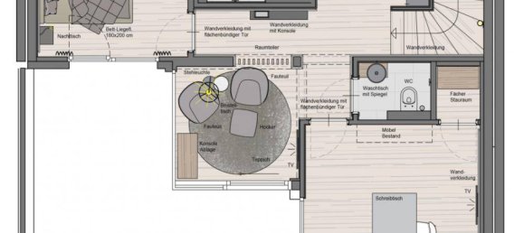
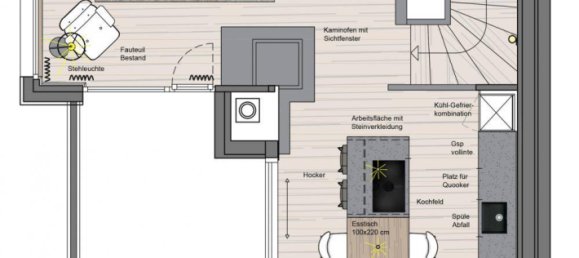
5
غرف
4
غرف نوم
3
الحمامات
202
غرف المعيشة, م2
St. Johann in Tirol, Austria
الإعدادات
غرف
5
غرف نوم
4
الحمامات
3
غرف المعيشة, م2
202
ID
115293
نوع
منزل
مساحة الأرض, م2
277
موعد الانتهاء
IV ربع, 2021
المميزات
موقعك
- إطلالة على المنتزه / الحديقة
المميزات
- سطح
- مفروشة
المرافق الخارجية
- حديقة











































