5غرفة منزل ذو طابقين في Leutasch, Austria رقم 131975
$ 1 105 990
$ 6 744 لكلّ متر مربّع؛
5
غرف
2
الحمامات
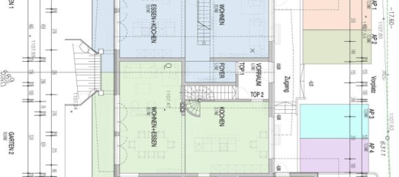
164
غرف المعيشة, م2
Leutasch, Austria
الإعدادات
غرف
5
الحمامات
2
غرف المعيشة, م2
164
ID
131975
نوع
منزل ذو طابقين
مساحة الأرض, م2
90
موعد الانتهاء
IV ربع, 2015
المميزات
المميزات
- شرفة
- سطح
- مفروشة
المرافق الداخلية
- غرفة تخزين
- مرآب
المرافق الخارجية
- موقف السيارات
- حديقة










































