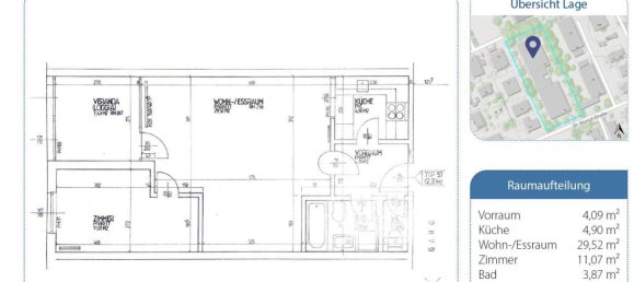
2غرفة شقة في Innsbruck-Stadt, Austria رقم 181733
$ 445 398
$ 7 184 لكلّ متر مربّع؛
2
غرف
1
الحمامات
62
غرف المعيشة, م2
Innsbruck-Stadt, Austria
الإعدادات
غرف
2
الحمامات
1
غرف المعيشة, م2
62
ID
181733
نوع
شقة
موعد الانتهاء
IV ربع, 1975
المميزات
المرافق الداخلية
- مرآب
المرافق الخارجية
- موقف السيارات










