3غرفة شقة في Bruck an der Leitha, Austria رقم 189565
$ 412 363
$ 4 795 لكلّ متر مربّع؛
3
غرف
1
الحمامات
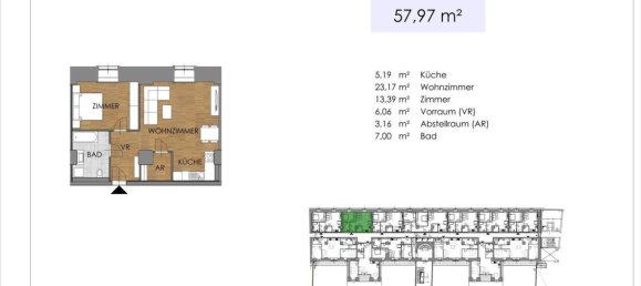
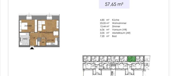
86
غرف المعيشة, م2
Bruck an der Leitha, Austria
الإعدادات
غرف
3
الحمامات
1
غرف المعيشة, م2
86
ID
189565
العنوان
Bundesstraße
نوع
شقة
موعد الانتهاء
IV ربع, 1821
المميزات
المميزات
- شرفة
- سطح
المرافق الداخلية
- غرفة تخزين
- مصعد
- مرآب
المرافق الخارجية
- موقف السيارات
- حديقة












































